全国统一服务热线:40000-57-892
电 话:0512-68364119
0512-52574119
传 真:0512-68361191
手 机:18021634119
18151099119
联系人:吴经理
邮 箱:[email protected]
地 址:江苏省常熟市辛庄镇桃园村
高压细水雾分区控制阀箱的操作说明
高压细水雾分区控制阀概述
高压细水雾分区控制阀包括开式分区控制阀组由电动截止阀、手动球阀、压力开关、压力表、箱体及连接管件等组成。主要功能是接收火灾报警控制器的控制信号后,开启相应分区的电动截止阀向防护区释放细水雾实施灭火。在喷头正常喷放细水雾时由压力开关向火灾报警控制器发出反馈信号。
高压细水雾分区控制阀组的应用
根据应用方式的不同,开式分区控制阀组分为两种应用方式:
开式系统--由开式分区控制阀+开式喷头组成
预作用系统--由开式分区控制阀+闭式喷头组成
分区控制阀过流部件和箱体均为奥氏体不锈钢。开式阀组与闭式阀组外观一致,内部结构及功能不同。
高压细水雾分区控制阀安装
1、高压细水雾分区控制阀上配有扣押螺母和焊管,管道与焊管用氩弧焊焊接后,采用活接头连接方式与阀组进、出水接口连接。
2、高压细水雾分区控制阀组应安装在防护区附近,并安装在防护区外,便于火灾发生时的应急操作、检查和维修。
3、高压细水雾分区控制阀的安装高度宜为1.2~1.6m,分区控制阀组安装分为明装和暗装,暗装时,一定要检查好接头处密封良好后再做装饰。
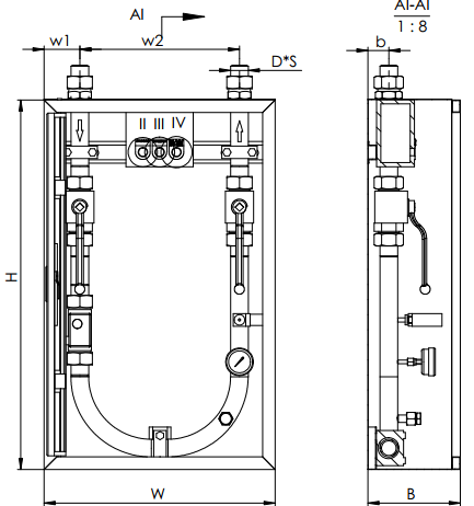
高压细水雾分区控制阀组尺寸示意图如下:

高压细水雾分区控制阀安装尺寸表
|
型号 |
外形尺寸(W*H*B) |
w1 |
w2 |
b |
D*S |
|
XSW-FZ 15/10 |
550*880*220 |
85 |
380 |
44.3 |
22*2.5 |
|
XSW-FZ 20/10 |
550*880*220 |
85 |
380 |
44.3 |
28*3.0 |
|
XSW-FZ 25/10 |
550*880*220 |
85 |
380 |
49.8 |
34*3.0 |
|
XSW-FZ 32/10 |
550*880*220 |
85 |
380 |
49.8 |
42*3.5 |
|
XSW-FZ 40/10 |
550*880*220 |
85 |
380 |
63 |
48*4.0 |
|
XSW-FZ 50/10 |
550*880*220 |
85 |
380 |
63 |
60*5.0 |
高压细水雾分区控制阀控制方式及接线
高压细水雾分区控制阀具有自动、手动和机械应急控制方式,但在通电状况下严禁用机械应急方式强行开启阀门,否则可能造成设备故障或损坏。
a. 自动控制:需要连接适合火灾报警控制器的控制模块,以控制阀组的开启动作和反馈信号给火灾报警控制器。
b. 手动控制:在火灾报警控制器失效的情况下使用,由分区控制阀组直接启动泵组,喷洒高压细水雾灭火。
c. 机械应急:在电动截止阀发生故障时使用,手动开启电动截止阀。
开式高压细水雾分区控制阀接线图:

- 各位朋友,下面的相关文章可能对您很有帮助!






